ご契約でお好きなギフト券10万円プレゼント♪

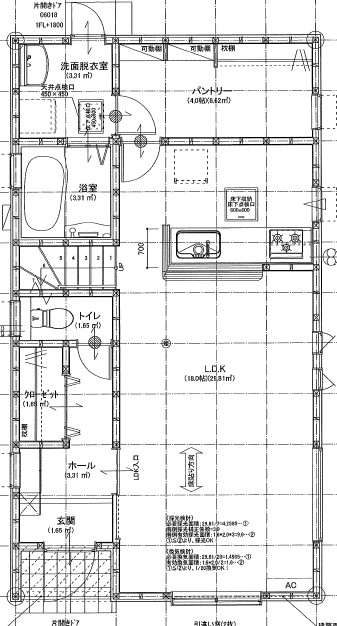
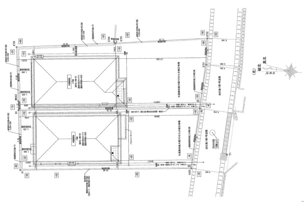
建物/新築住宅リーブルガーデン合志市須屋 3,148万円 1号棟

価格
3,148万円
最寄り交通機関
熊本電気鉄道「須屋」駅 徒歩15分
所在地
合志市須屋
土地面積
157.83m2 (47.74坪)
建物面積
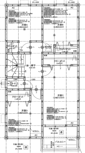
105.99m2 (32.06坪)
間取り
4SLDK
構造/階数
木造/2階建
築年月
2026年8月
学校区
西合志南小学校 1850m徒歩24分  西合志南中学校 1600m徒歩20分
引き渡し
相談
取引態様
仲介
備考・コメント
-